首页
企业动态
新闻动态
招聘信息
焦点关注
企业资质
建筑装饰装修
建筑装饰设计
建筑机电安装
洁净室建造
电子与智能化
城市道路照明
钢结构
消防设施
安全生产许可证
设计与施工
装饰设计
机电设计
项目管理
工程案例
企业文化
娱乐生活
宣传栏
公益活动
关于我们
董事长致辞
公司简介
发展历程
组织架构
华通荣誉
品牌战略
联系我们
当前位置:
首页
设计与施工
机电设计
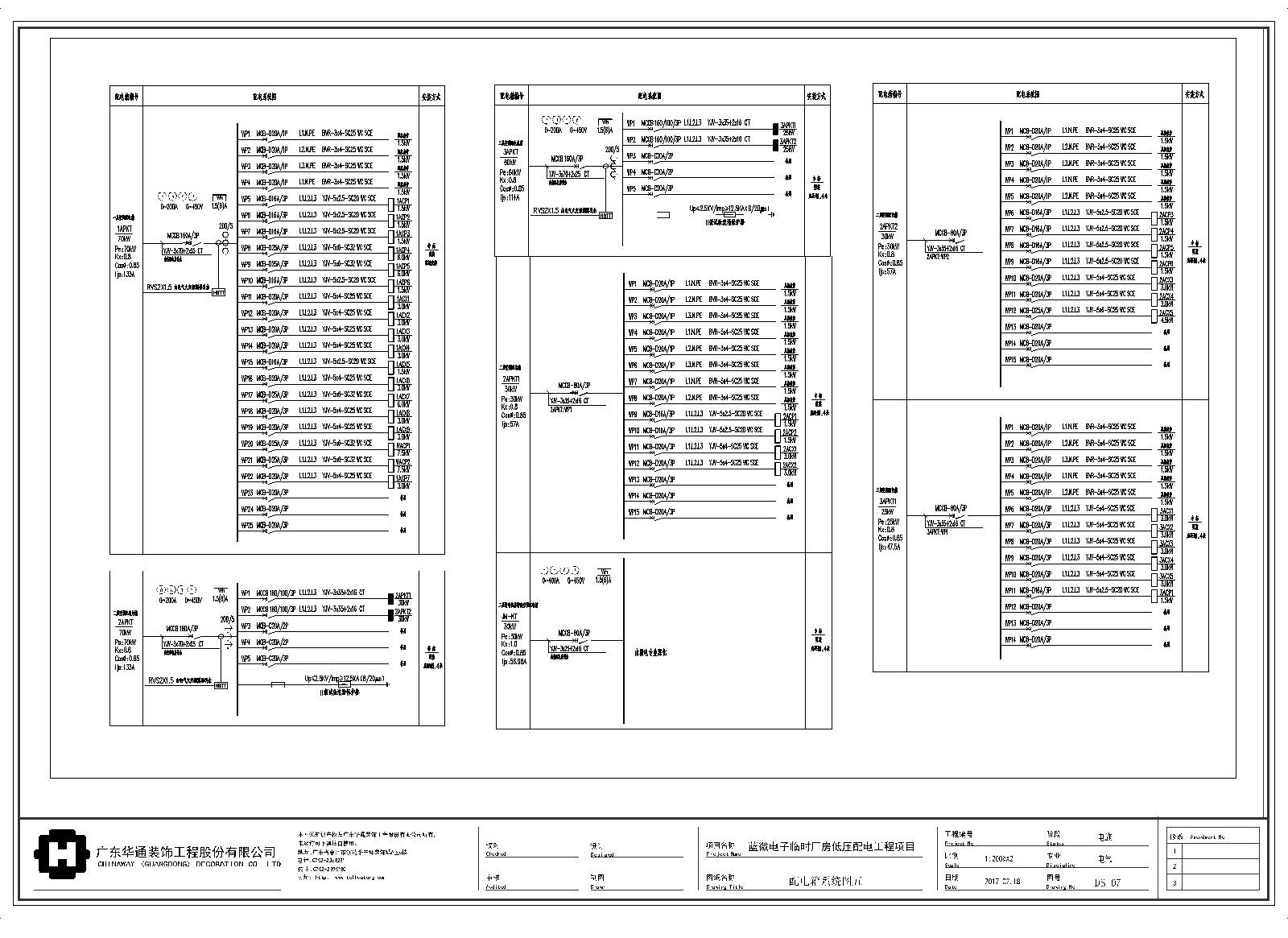
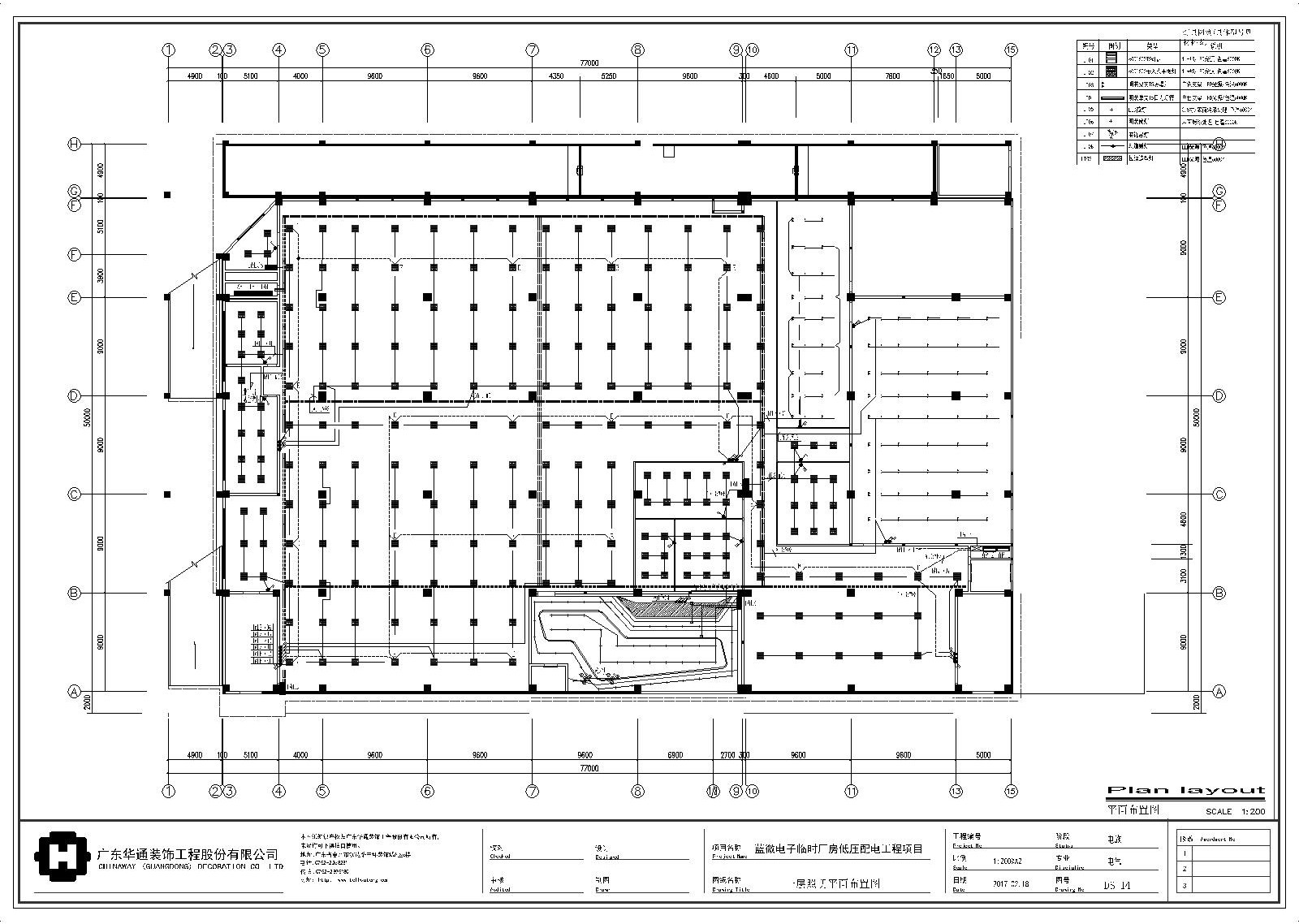
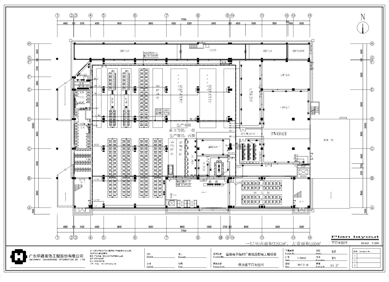
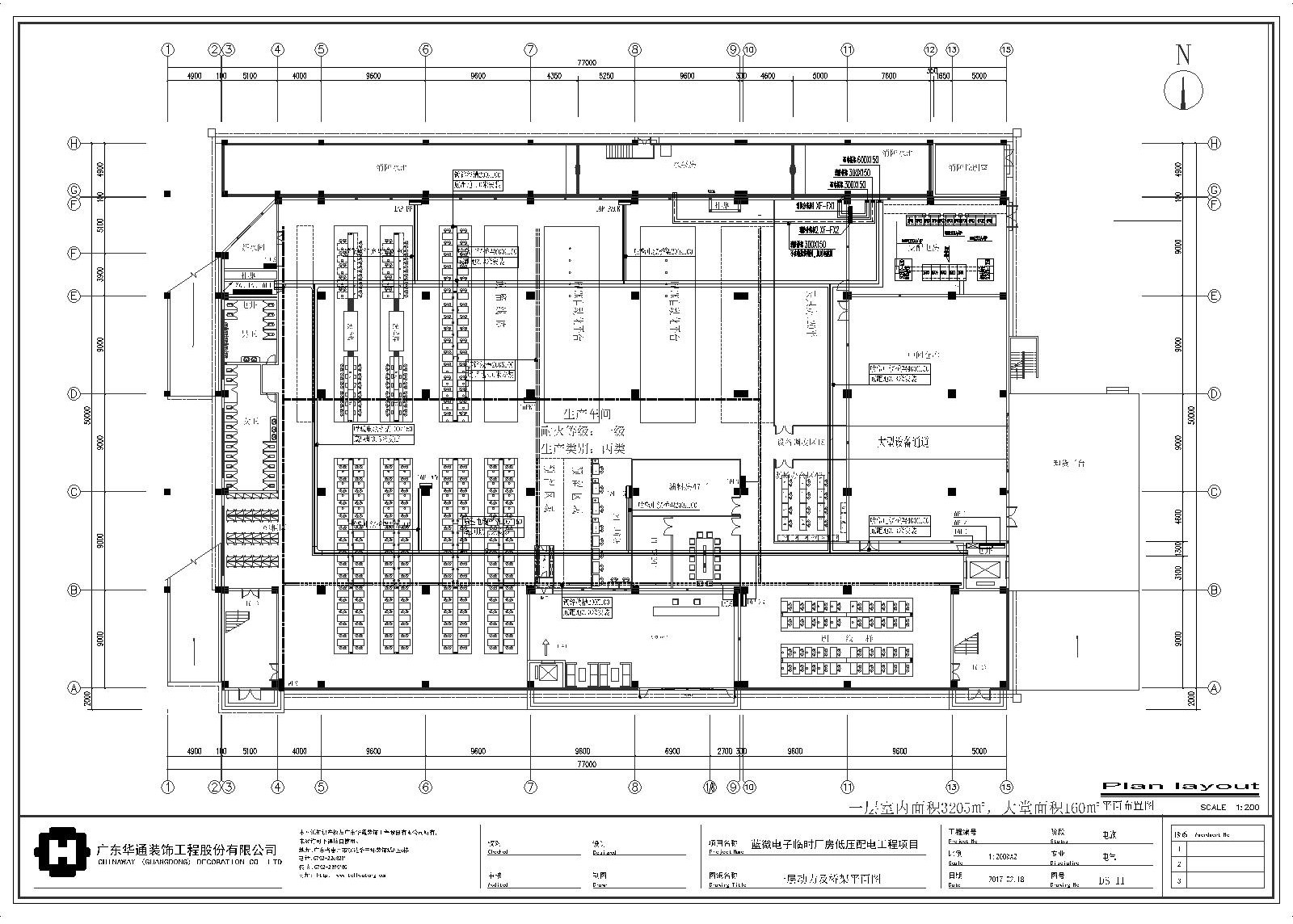
蓝微电子研发楼办公室电气安装工程
蓝微电子研发楼办公室电气安装工程
2018-06-23 09:12:00
陈海斌
原创
4129
项目概况:惠州市惠环古塘坳白云前东风村厂房B幢,由惠州市蓝微电子有限公司投资兴建。
关于我们
董事长致辞
公司简介
发展历程
组织架构
华通荣誉
品牌战略
联系我们
企业资质
建筑装饰装修
建筑装饰设计
建筑机电安装
洁净室建造
电子与智能化
城市道路照明
钢结构
消防设施
安全生产许可证
设计与施工
装饰设计
机电设计
施工管理
工程案例
企业文化
娱乐生活
宣传栏
公益活动
企业动态
公司新闻
招聘信息
焦点关注
微信公众号二维码